逆变器-逆变器MOS管型号大全、工作原理、主要参数等详解-KIA MOS管
信息来源:本站 日期:2018-08-01
逆变器是把直流电能(电池、蓄电瓶)转变成交流电(一般为220V,50Hz正弦波)。它由逆变桥、控制逻辑和滤波电路组成。广泛适用于空调、家庭影院、电动砂轮、电动工具、缝纫机、DVD、VCD、电脑、电视、洗衣机、抽油烟机、冰箱,录像机、按摩器、风扇、照明等。在国外因汽车的普及率较高外出工作或外出旅游即可用逆变器连接蓄电池带动电器及各种工具工作。通过点烟器输出的车载逆变是 20W 、 40W 、 80W 、 120W 到 150W 功率规格。再大一些功率逆变电源要通过连接线接到电瓶上。把家用电器连接到电源转换器的输出端就能在汽车内使用各种电器。可使用的电器有:手机、笔记本电脑、数码摄像机、照像机、照明灯、电动剃须刀、CD 机、游戏机、掌上电脑、电动工具、车载冰箱及各种旅游、野营、医疗急救电器等。
逆变器就是一种将低压(12或24伏或48伏)直流电转变为220伏交流电的电子设备。由于我们通常是将220伏交流电整流变成直流电来运用,而逆变器的作用与此相反,因而而得名。我们处在一个“挪动”的时期,挪动办公,挪动通讯,挪动休闲和文娱。在挪动的状态中,人们不但需求由电池或电瓶供应的低压直流电,同时更需求我们在日常环境中不可或缺的220伏交流电,逆变器就能够满足我们的这种需求。

1.额定功率:3KW,过载能力为:150%
2.输入电压范围:DC300~600V
3.额定输出电压:AC220V/50Hz
4.额定功率因数:0.99
5.额定转换效率:94%
6.隔离方式:无变压器,非隔离方式
7.保护功能:过压、欠压、过流、短路、过热保护
(一)工作原理及电路
这里主要是讲述逆变器是由MOS场效应管,普通电源变压器构成。其输出功率取决于MOS场效应管和电源变压器的功率,免除了烦琐的变压器绕制,适合电子爱好者业余制作中采用。下面介绍该逆变器的工作原理及制作过程。


这里采用六反相器CD4069构成方波信号发生器。电路中R1是补偿电阻,用于改善由于电源电压的变化而引起的振荡频率不稳。电路的振荡是通过电容C1充放电完成的。其振荡频率为f=1/2.2RC.图示电路的最大频率为:fmax=1/2.2×3.3×103×2.2×10-6=62.6Hz;最小频率fmin=1/2.2×4.3×103×2.2×10-6=48.0Hz.由于元件的误差,实际值会略有差异。其它多余的反相器,输入端接地避免影响其它电路。
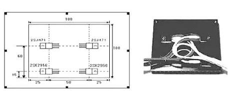
(二)逆变器MOS管图解
逆变器用的变压器采用次级为12V、电流为10A、初级电压为220V的废品电源变压器。P沟道MOS场效应管(2SJ471)最大漏极电流为30A,在场效应管导通时,漏-源极间电阻为25毫欧。此时假如经过10A电流时会有2.5W的功率耗费。N沟道MOS场效应(2SK2956)最大漏极电流为50A,场效应管导通时,漏-源极间电阻为7毫欧,此时假如经过10A电流时耗费的功率为0.7W.由此我们也可知在同样的工作电流状况下,2SJ471的发热量约为2SK2956的4倍。所以在思索散热器时应留意这点。图8展现本文引见的逆变器场效应管在散热器(100mm×100mm×17mm)上的位置散布和接法。虽然场效应管工作于开关状态时发热量不会很大,出于安全思考这里选用的散热器稍偏大。
1:逆变器电路板


2:逆变器所用元器件

3:逆变器位置分布与接法

这里测试用的输入电源采用内阻低、放电电流大(一般大于100A)的12V汽车电瓶,可为电路提供充足的输入功率。测试用负载为普通的电灯泡。测试的方法是通过改变负载大小,并测量此时的输入电流、电压以及输出电压。输出电压随负荷的增大而下降,灯泡的消耗功率随电压变化而改变。我们也可以通过计算找出输出电压和功率的关系。但实际上由于电灯泡的电阻会随受加在两端电压变化而改变,并且输出电压、电流也不是正弦波,所以这种的计算只能看作是估算。

以负载为60W的电灯泡为例:假设灯泡的电阻不随电压变化而改变。因为R灯=V2/W=2102/60=735Ω,所以在电压为208V时,W=V2/R=2082/735=58.9W.由此可折算出电压和功率的关系。通过测试,我们发现当输出功率约为100W时,输入电流为10A.此时输出电压为200V。
KIA产品特点:1、高频特性、高温特性、高压特性; 2:碳化硅器件是同等硅器件耐压的10倍; 3:碳化硅肖特基管耐压可达2400V; 4:碳化硅场效应管耐压可达数万伏。且通态电阻小。

备注:标注的Id电流是MOS芯片的最大电流,实际使用时的最大电流还要受封装的最大电流限制。客户设计产品时的最大使用电流设定要考虑封装的最大电流限制。建议客户设计产品时的最大使用电流设定更重要的是要考虑MOS的内阻参数。
联系方式:邹先生
联系电话:0755-83888366-8022
手机:18123972950
QQ:2880195519
联系地址:深圳市福田区车公庙天安数码城天吉大厦CD座5C1
请搜微信公众号:“KIA半导体”或扫一扫下图“关注”官方微信公众号
请“关注”官方微信公众号:提供 MOS管 技术帮助